- Wohneinheitenfläche
- Um 114 m²
- Grundstücksfläche
- Um 240 m²
- Baujahr
- Baujahr 1990
- Anzahl der Zimmer
- 5 Räume (4 Schlafzimmer)
Große Eckwohnung mit großem Garten, Dachkammer und Energieausweis A - ideal für junge Familien!
Willkommen an der Golden Delicious 97 in Duiven, ein wunderbarer Ort, um mit Familie zu leben!
Diese geräumige Eckwohnung mit einem Grundstück von mindestens 240 m² bietet alles, was Sie suchen: Platz, Licht, eine feine Ausstattung und einen großen Garten, in dem Kinder sich wunderbar amüsieren können.
Die Wohnung liegt in einer ruhigen, familienfreundlichen Wohngegend mit Schulen, Spielplätzen, Läden und öffentlicher Verkehrsmittel in unmittelbarer Nähe. Alles, was man für das tägliche Familienleben braucht, ist also buchstäblich um die Ecke!
Was an diesem Haus so attraktiv ist:
\u00b7 Großes Ecke-Grundstüc von 240 m\u00b2 mit großem Privatheit
• Energiezeichen A – vorbereitet auf die Zukunft
\u2022 Großes Dachgestänge über fast die gesamte Breite: Viele Licht und zusätzlicher Raum
\u00c4hnliche praktische Nook neben der Küche
• Helle, gut gegliederte Räume
• 3 Schlafzimmer, wobei ein 4. im Dachgeschoss leicht umzusetzen ist.
Einteilung
Erdgeschoss:
Eingang mit Heizkörper, Meterstand und Toilette. Die helle Wohnzimmer hat große Fenster und eine angenehme Atmosphäre. Die L-förmige Küche ist praktisch eingerichtet und steht in Verbindung mit der Nebenküche, wo Platz für Waschmaschine und Trockner ist. Über die Küche gelangt man direkt in den großen Hintergarten, ideal für lange Sommernachmittage oder spielende Kinder. Neben der Nebenküche befindet sich das Schuppen.
Erste Etage:
Überdachung mit drei gut dimensionierten Schlafzimmern und einer sauberen Badkammer mit Dusche, Waschbecken und zweitem Toilettenraum.
Zweite Etage:
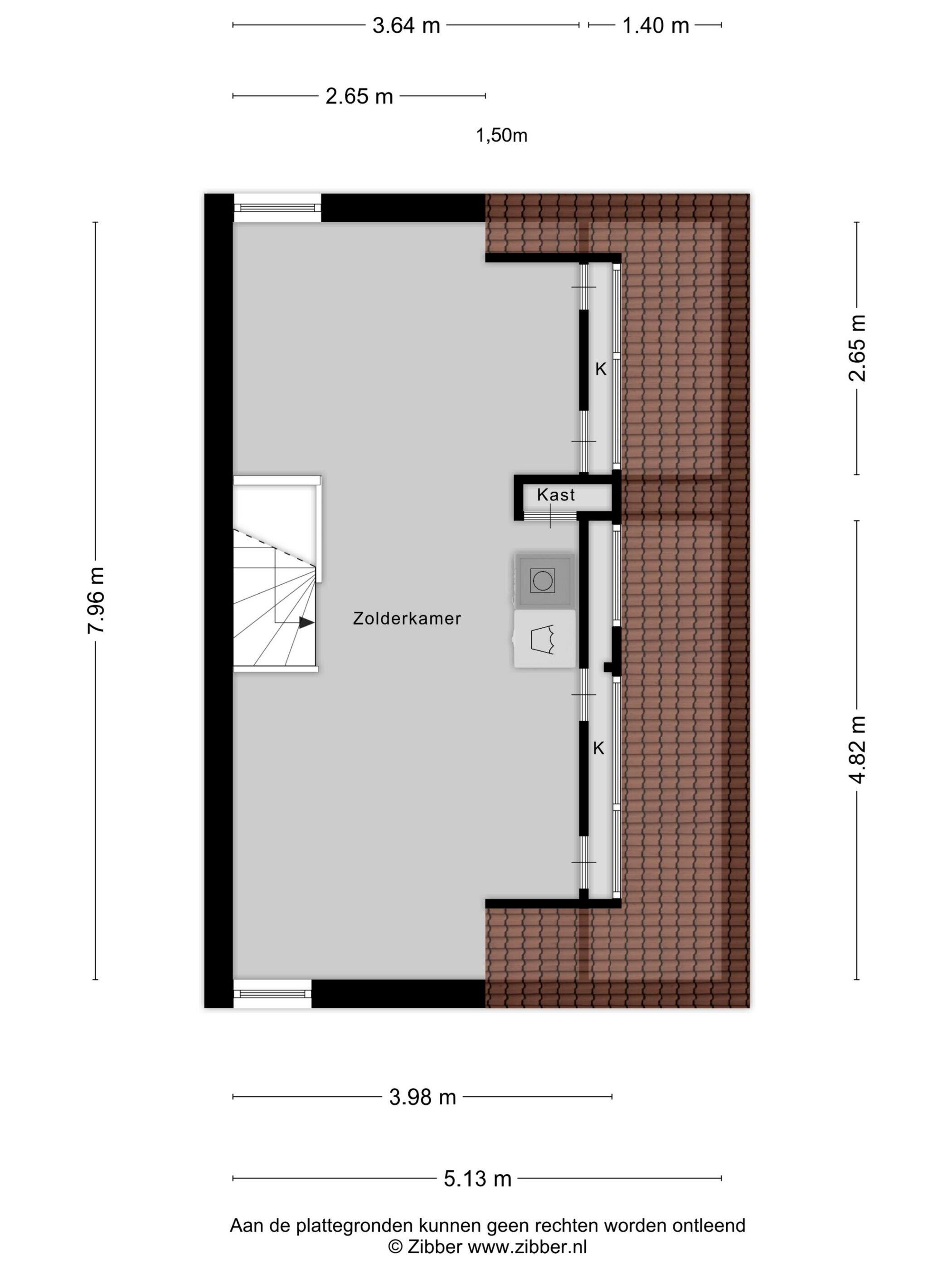
Eine vollwertige Dachgeschoss-Veranda mit enormer Kuppel, die eine großzügige zusätzliche Zimmerfläche schafft. Perfekt als viertes Schlafzimmer, Heimbüro oder Spielraum im Dachstuhl.
Warum du hier wohnen möchtest:
Die Golden Delicious 97 kombiniert Platz, Komfort und eine ideale Lage in einer angenehmen Wohngegend. Sei es nun, dass du einen weiteren Schritt mit deiner Familie machst oder nach einem schönen Familienhaus suchst, in dem ihr euch einnistet — dieses Haus fühlt sich sofort wie Zuhause an. Lies die vollständige Beschreibung
Übertrag
- Verhandlungspreis
- 399.000 € k.K.
- Status
- Verkauft unter Vorbehalten
- Hinnehme
- Im Gespräch
Bau
- Gegenstandsart
- Einzelhaus, Eckwohnung
- Bauart
- Existierende Bauwerke
- Baujahr
- 1990
Oberfläche und Inhalt
- Wohneinheitenfläche
- 114 m²
- Grundstücksfläche
- 240 m²
- Inhalt
- 423 m³
- Außenbereich
- 4 m²
Einteilung
- Anzahl der Zimmer
- 5 Räume (4 Schlafzimmer)
- Anzahl der Badezimmer
- 1 Bad und 1 getrenntes Toilettenzimmer
- Anzahl der Wohnetagen
- 3 Wohnetagen
Energie
- Energietag
- A
Außenraum
- Lage
- An ruhiger Straße
- Garten
- Hintergarten und Vorgarten
Energieverbrauch ein Duiven
Energietag der Wohnung
Energielabel A
Energietagmenteil:
Jahres-Stromverbrauch
(Durchschnitt Winkelhaus in Duiven)
Gaskonsum pro Jahr
(Durchschnitt Winkelhaus in Duiven)
* Zahlen stammen vom CBS und sollen als Indikatoren dienen und können für diese Wohnung unterschiedlich sein
Hypothekenbelastungen
Eigene Einlage:
Ersparnisse / Überwert
Zins:
Niedrigste 10-Jahres-Zinssatz
Niedrigste 10-Jahres-Zinssatz
2,88% - Centraal Beheer Groen... - NHG
3,1% - Argenta Groen Hypotheek... - 80%
Niedrigste 20-jährige Zinssatz
3,19% - Centraal Beheer Groen... - NHG
3,47% - Argenta Groen Hypothee... - 80%
Niedrigste 30-jährige Zinssatz
3,34% - Centraal Beheer Groen... - NHG
3,64% - Argenta Groen Hypothee... - 80%
Hypothek:
Bruttomonatslasten: € 0 p/m
Nettomonatskosten: € 0 p/m
Wie berechnen wir dies?
Der Zinssatz basiert auf dem niedrigsten 10-jährigen Festzins für einen einzelnen Hypothekenteil. Der angegebene Zinssatz (2.88% met NHG) wurde am 10-12-2025 überprüft. Diese Berechnung basiert auf einer Annuitätenhypothek, die vollständig zurückgezahlt wird, wobei die monatlichen Zahlungen während der gesamten Laufzeit gleich bleiben. Der tatsächliche Zinssatz und die monatlichen Nettokosten können je nach Ihrer persönlichen Situation und dem Hypothekengeber variieren. Wenden Sie sich für eine genaue Berechnung und Beratung an einen Finanzberater. Aus dieser Berechnung können keine Rechte abgeleitet werden; sie dient lediglich als Orientierung.
Dokumentation
Katasterkarte
Lebensumgebung
Wertbescheinigung
Planansichten PDF
Krankenkassenbeleg
Meetbericht-a-1585121-20251013092633
Aufgabengruppe
Befragungsteil B
Energielabel-golden-delicious-97-6922ar-duiven
Abschrift-offen-registrierung-hyp4-dl-18851-nr-41-reihe-arnheim-veranonymisiert
Broschur-goldener-himmlisch-97-tauben
Broschüre
Virtuelle Tour
Virtuelle Tour
Besuchen Sie unsere Website
Besichtigung
Boden verlegen
Wertschätzung
Suchanfrage
Alles herunterladen
Sonnengrenzen betrachten
Auf der Karte
Bewohner von Duiven
Zahlen für Postleitzahl-Region 6922
- Gesamtbevölkerungszahl
- 7590 Bewohner
- Männer
- 49%
- Frauen
- 51%
Bewohner von Duiven
Zahlen für Postleitzahl-Region 6922
- bis 15 Jahre
- 14%
- 15 bis 25 Jahre
- 13%
- 25 bis 35 Jahre
- 19%
- 45 bis 65 Jahre
- 36%
- 65 und älter
- 18%
Haushalte von Duiven
Zahlen für Postleitzahl-Region 6922
- Einpersonig ohne Kinder
- 27%
- Erwachsene ohne Kinder
- 34%
- Haushalte ohne Kinder
- 61%
Haushalte von Duiven
Zahlen für Postleitzahl-Region 6922
- Haushalte mit einem Kind
- 8%
- Haushalte mit mehreren Kindern
- 31%
- Haushalte mit Kindern
- 39%
Wohnungen in Duiven
Zahlen für Postleitzahl-Region 6922
- Wohnungen vor 1945
- 1%
- Wohnungen zwischen 1945 und 1965
- 1%
- Wohnungen zwischen 1965 und 1975
- 1%
- Wohnungen zwischen 1975 und 1985
- 1%
- Wohnungen zwischen 1985 und 1995
- 88%
Wohnungen in Duiven
Zahlen für Postleitzahl-Region 6922
- Wohnungen zwischen 1995 und 2005
- 6%
- Wohnungen zwischen 2005 und 2015
- 4%
- Wohnungen nach 2015
- 1%
- Mietwohnungen
- 40%
- Eigentumswohnungen
- 60%
Sonstige Einzahlungen Duiven
Zahlen für Postleitzahl-Region 6922
- Durchschnittliche WOZ-Wert
- € 245.000,-
- Personen unter 65 Jahren mit Hinterbliebenengeld
- 8%
Sonstige Einzahlungen Duiven
Zahlen für Postleitzahl-Region 6922
- Adressen pro Quadratkilometer
- 1247
- Urbanität (Skala von 1 bis 5)
- 60%
Wir helfen Ihnen gerne weiter!
Ihre Wohnung ist ein Ort mit Bedeutung. Wenn Sie eine Wohnung kaufen, verkaufen oder vermieten, suchen Sie einen Immobilienmakler, der das versteht, einen Makler, der kompetent ist und eine kreative, innovierende und effektive Methode anwendet, um Ihr Traumhaus zu finden, Ihre Wohnung zu verkaufen oder zu vermieten.
Aufgrund unseres langjährigen Erfahrung im Immobilienbereich verfügen wir über umfassende Kenntnisse und können Ihnen in der Region Arnheim, Limmers und der Achterhoek behilflich sein!
Neueste Bewertungen
-
Poststraat 35
Die Kontaktaufnahme mit Koopstek (Kim de Kievit) verlief auf angenehme und einfache Weise. Die Angelegenheit wurde eifrig bearbeitet. Die St...
-
Nachtschade 138
Wir haben die Betreuung als sehr gut erlebt. Wir wurden regelmäßig über den Stand informiert und konnten immer mit Fragen zu ihr kommen.
-
Poststraat 37
Was mir aufgefallen ist, dass Kim de Kievit sich sehr engagiert zeigte. Sie entwickelte eine Verkaufstaktik, die speziell für das Objekt gee...